Tollgate Lane

Bury St Edmunds, IP32 6DF

Let Agreed
£1,150 Rent pcm

Array
Bedrooms 2
Bathrooms 1
Tenure Let Agreed

Key Information

Available From 05/12/2025
Property Type Terraced
Let Type Long Term
Furnished Un-Furnished

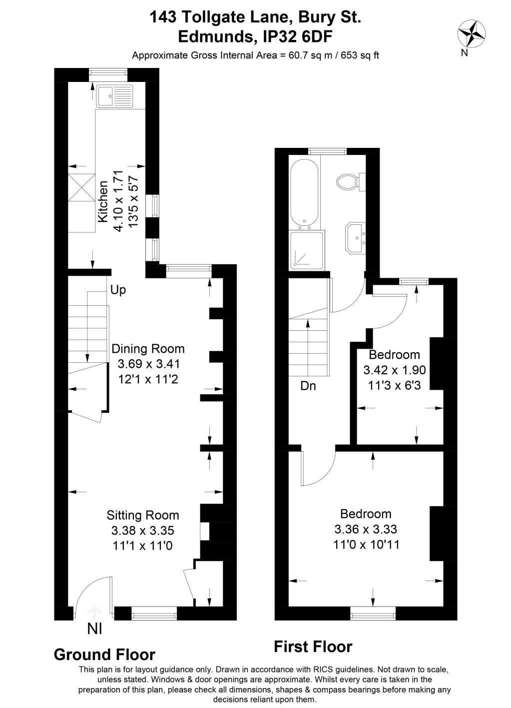
About The Property

2 BED, MID TERRACED TOWN COTTAGE WITH PARKING The accommodation comprises large lounge-diner, kitchen. On the first floor there are 2 bedrooms (1 x double and 1 x single) and bathroom. Outside there is a front garden and to the rear an enclosed garden with decked area, new garden shed and parking space. Would suit professional couple.EPC BAND D AND COUNCIL TAX BAND B

Specification

  • 2 Bedrooms
  • 1 Bathroom
  • Driveway Parking Available
  • Medium Sized Garden
  • Long Term

Video Tour

Top